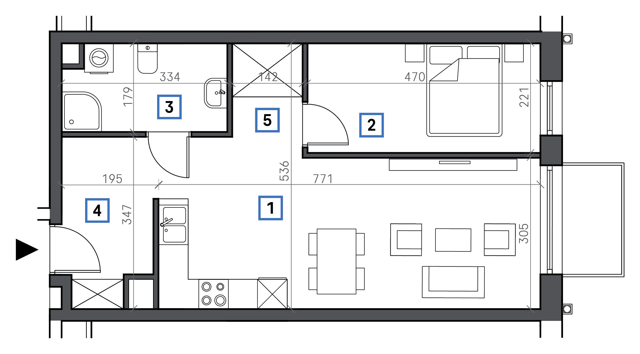
Lokal mieszkalny 26
poziom +4
48,78 m2 + balkon
dostępne 48,78 m2 + balkon

Piętro +4
Lokal mieszkalny 26 48,78 m2
1. Pokój + aneks kuchenny 22,53 m2
2. Pokój 10,16 m2
3. Łazienka 5,51 m2
4. Przedpokój 7,38 m2
5. Garderoba 3,20 m2
+ balkon ~2,64 m2
Do pobrania
Poniżej pobierzesz pliki w dużych rozmiarach (otwierają się w nowym oknie).
Możesz je przeglądać lub zapisać na swoim dysku do dalszej edycji np. w programie do wizualizacji mieszkania...
Rzut lokalu i wizualizacje mają charakter poglądowy.
Wielkość pomieszczeń i całkowita powierzchnia lokalu może ulec zmianie, nie uwzględnia powierzchni balkonu.
Powierzchnie tarasów i balkonów mają szacunkowy metraż, zależny od wykończenia.
Powierzchnia użytkowa została określona na podstawie Rozporządzenia Ministra Rozwoju z dnia 11 września 2020 r. w sprawie szczegółowego zakresu i formy projektu budowlanego, zgodnie z zasadami zawartymi w Polskiej Normie PN-ISO 9836 „Właściwości użytkowe w budownictwie – Określanie i obliczanie wskaźników powierzchniowych i kubaturowych”, wymienionej w załączniku do rozporządzenia, uwzględniając przepisy § 14 pkt 4 lit. a oraz § 20 ust. 1 pkt 4 lit. b. rozporządzenia.
Przedmiotowe zestawienie nie stanowi oferty w rozumieniu ustawy Kodeks Cywilny.
Wielkość pomieszczeń i całkowita powierzchnia lokalu może ulec zmianie, nie uwzględnia powierzchni balkonu.
Powierzchnie tarasów i balkonów mają szacunkowy metraż, zależny od wykończenia.
Powierzchnia użytkowa została określona na podstawie Rozporządzenia Ministra Rozwoju z dnia 11 września 2020 r. w sprawie szczegółowego zakresu i formy projektu budowlanego, zgodnie z zasadami zawartymi w Polskiej Normie PN-ISO 9836 „Właściwości użytkowe w budownictwie – Określanie i obliczanie wskaźników powierzchniowych i kubaturowych”, wymienionej w załączniku do rozporządzenia, uwzględniając przepisy § 14 pkt 4 lit. a oraz § 20 ust. 1 pkt 4 lit. b. rozporządzenia.
Przedmiotowe zestawienie nie stanowi oferty w rozumieniu ustawy Kodeks Cywilny.