1 maja 30 - Twoje miejsce w Żyrardowie
1maja30 to kolejna inwestycja lokalnej firmy deweloperskiej działającej na terenie Żyrardowa.
Budynek łączy ze sobą dwa najważniejsze elementy, które wpływają na wysoki komfort życia w samym centrum miasta - najwyższą jakość budownictwa i łatwy dostęp do szeroko rozbudowanej infrastruktury miejskiej. W procesie powstawania mieszkań biorą udział jedynie firmy, które są specjalistami w swoim fachu. Zarówno producenci i dostawcy materiałów wykorzystywanych do budowy jak i przedsiębiorcy świadczący usługi związane z naszymi apartamentami są profesjonalistami z wieloletnim doświadczeniem w branży. Okoliczna infrastruktura pozwala na szybki dostęp do najważniejszych punktów miasta - urzędów, przychodni, szpitala, aptek, szkół i przedszkoli, supermarketów. W najbliższym otoczeniu znajdują się również sklepy odzieżowe, salony kosmetyczne i fryzjerskie, kino, park czy sala zabaw, co zdecydowanie zaspokaja potrzeby dnia codziennego.
Te elementy składowe inwestycji powodują, że nawet najbardziej wymagający Klienci będą zadowoleni z wyboru naszych mieszkań.
1 maja 30 oferuje lokale mieszkalne o zróżnicowanym metrażu dzięki czemu inwestycja będzie doskonałym wyborem zarówno dla singli, osób starszych jak i rodzin z dziećmi. W budynku znajdować będzie się winda, do której dostęp jest możliwy i z klatki schodowej i z zadaszonego garażu, który wbudowany będzie w bryłę budynku. We współczesnym budownictwie windy są już standardem - początkowo ułatwią remont i przeprowadzkę, a w dalszym etapie pozwolą na szybsze przemieszczanie się między piętrami.
Kawalerki z możliwością wydzielenia sypialni
Nasze najmniejsze mieszkania - kawalerki, o powierzchni około 39m2 mają możliwość wydzielenia sypialni, co jest dużym udogodnieniem i sposobem na uzyskanie większej prywatności.
Kolejne lokale mieszkalne oscylują między 42 a 49 m2. W ich skład wchodzą salon z aneksem kuchennym, pokój sypialniany oraz łazienka. W każdym z mieszkań istnieje możliwość wydzielenia garderoby bądź wstawienia dużej szafy we wnęce znajdującej się w przedpokoju.
Największe mieszkania w inwestycji 1 maja 30 to niemalże 75m2 z 3 pomieszczeniami (w tym salon z aneksem kuchennym) i łazienką. W tych lokalach okna wychodzą na dwie strony świata, co zapewnia idealne oświetlenie od samego rana.
Inwestycja przy ul. 1 maja 30 w Żyrardowie to budynek pięciokondygnacyjny, w skład którego wchodzi:
- 27 mieszkań
- lokal usługowy na parterze
- 5 lokali biurowych na 1 piętrze
- 15 miejsc parkingowych w garażu
- 1 zewnętrzne miejsce parkingowe
Poniżej informacja o usytuowaniu lokali na piętrach.
Pliki w dużych rozmiarach są dostępne do pobrania na dole strony
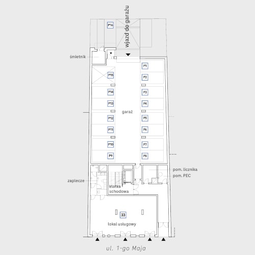
Parter
- garaż
- lokal niemieszkalny - usługowy
- wejście do budynku
- pomieszczenia techniczne

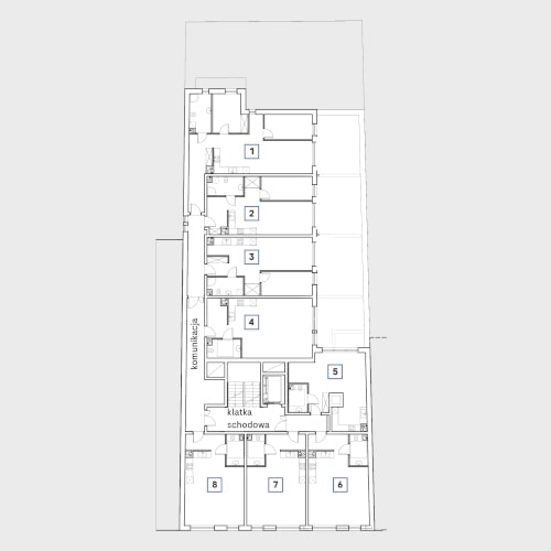
Piętro +1
- lokale mieszkalne: 1 - 3
- lokale niemieszkalne - biurowe: 4 - 8

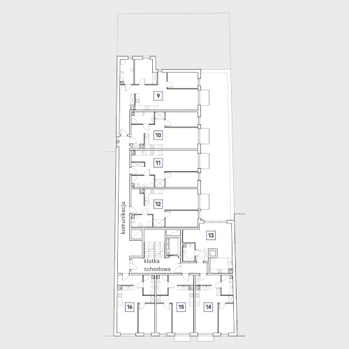
Piętro +2
- lokale mieszkalne: 9 - 16

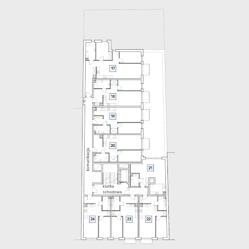
Piętro +3
- lokale mieszkalne: 17 - 24

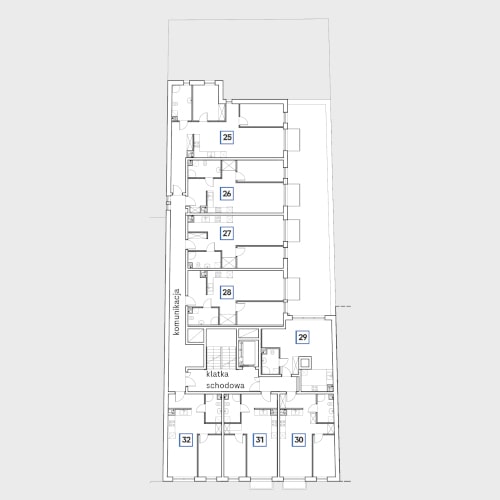
Piętro +4
- lokale mieszkalne: 25 - 32
